projektowanie architektury to zawód, sposób i styl życia
EX AMOR IN SAPIENTIA STABILIS
emblem
Pracownia Autorska DOMY POLSKIE ®
arch. Beaty Kazimierskiej - Korsak
Mazowiecka Okręgowa Izba Architektów
MA - 0339
Uprawnienia Projektowe
Wa - 359/90
Rok założenia
1990
Członek Oddiału Warszawskiego
SARP
świetny warsztat projektowy, ogromne doświadczenie, wybitnie zdolni projektanci
Projektujemy wyłącznie na indywidualne zamówienie, nie sprzedajemy projektów gotowych, projektujemy dla Państwa.
Dorobek projektowy
image
Zakład opiekuńczy

Szanowni Państwo,


Ponieważ coraz częściej w oststnich latach projektujemy obiekty z przeznaczeniem na zakłady pielęgnacyjno-opiekuńcze dla osób starszych, postanowiłam zaprezentować Państwu bardziej szczegółowo jeden z ostatnich moich tego typu projektów.
Budynek Zakładu Pielegnacyjno - Opiekuńczego dla osób starszych zaprojektowany jest w tradycyjnym stylu, z zaakcentowaniem elementów, detali i nastrojów właściwych dla narodowo-romantycznego nurtu architektury polskiej. Zwarty w formie, zaprojektowany na rzucie prostokąta z zaakcentowanym osiowo ryzalitem wejściowym ganku w elewacji południowej i podcieniowym tarasem w elewacji wschodniej, tworzy prostą bryłę nakrytą dachem łamanym mansardowym wielospadowym.


Budynek zaprojektowany jest jako pięcio traktowy w ten sposób, że trzy trakty użytkowe obsługiwane są w prosty sposób przy pomocy dwóch traktów komunikacyjnych.
Ta prosta zasada konstrukcyjno - funkcjonalna powtarza się konsekwentnie w rozwiązaniach każdej kondygnacji budynku.
Budynek jest w całości podpiwniczony i posiada 1,5 kondygnacji nadziemnych w taki sposób, że jest to kondygnacja parteru oraz kondygnacja poddasza rozwiązana w dachu. Wysokość kondygnacji zaprojektowano następująco: piwnica i parter maja wysokość po 3,03 m w świetle, a poddasze 3,13 m w świetle. Budynek wyposażony jest w jedną klatkę schodową oraz windę przystosowaną do transportu osób niepełnosprawnych i chorych na noszach. Budynek przystosowany jest do użytkowania przez osoby niepełnosprawne poruszające się na wózkach.
Zaprojektowano budynek bez barier architektonicznych: w budynku nie ma progów, dostęp do budynku z poziomu terenu przy budynku zarówno od strony głównego wejścia jak i od strony sali dziennego pobytu odbywa się za pośrednictwem systemu ramp przystosowanych do ruchu wózków inwalidzkich, na każdej kondygnacji zaprojektowano ogólnodostępny w.c. dla osób niepełnosprawnych, a każdy pokój mieszkalny pensjonariuszy wyposażony został w łazienkę przystosowaną do korzystania przez osoby niepełnosprawne, jak już wspomniano na wyposażeniu budynku jest również winda.
Dach projektuje się jako łamany mansardowy wielospadowy rozwiązany co do zasady osiowo i symetrycznie, kryty blachą cynkową lub stalową kolorowaną ( proponowany kolor jasno grafitowy) na deskowaniu pełnym. Na krawędziach dachu przy okapie zastosowano miejscowo nadbitki, łagodzące spadek dachu w pobliżu rynny, które poza troską o tradycyjną formę dachu, mają za zadanie zabezpieczać rynny przed uszkodzeniem przed spadającym wiosną z dachów ciężkim, zlodzonym śniegiem. Proste trój schodkowe gzymsy kordonowe z opaską, obiegające wkoło bryłę budynku stanowią charakterystyczny element projektowanej architektury. Podobny motyw zastosowany również został w czapkach kominów i w zwieńczeniu wejściowego łukowego podcienia ganku. Wysmuklenie proporcji głównej bryły budynku uzyskano dzięki zastosowaniu charakterystycznych przypór widocznych zarówno w obrębie głównego wejścia i podcieniowego tarasu w elewacji bocznej jaki i w narożnikach budynku. Dzięki tym prostym zabiegom uzyskany został indywidualny charakter architektury, o cechach elegancji, prostoty i tradycyjnego ciepła podkreślony dodatkowo jeszcze łukowato zakończonymi lukarnami kondygnacji poddasza.
Istotnym elementem w kompozycji architektonicznej są duże przeszklenia pomieszczeń zaprojektowane z uwzględnieniem wymagań wynikających z wymagań technicznych jakim powinny odpowiadać budynki. Szczególnie sekwencja trzech dwuskrzydłowych przeszklonych drzwi tarasowych w zagłębionym podcieniu w elewacji ogrodowej budynku, nadające architekturze wyraz lekkości i obiecujące dobre doświetlenie i pogodny charakter wnętrz.
W procesie projektowania bardzo dużą uwagę poświęcono zachowaniu właściwych proporcji budynku i staranności projektowanego detalu przy jednoczesnym praktycznym i funkcjonalnym rozwiązaniem programu Zakładu Pielęgnacyjno - Opiekuńczego. Szczególnie ważne było uzyskanie prostego funkcjonalnego budynku w ramach racjonalnych kosztów wykonawczych i estetyki projektowanych rozwiązań.
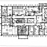
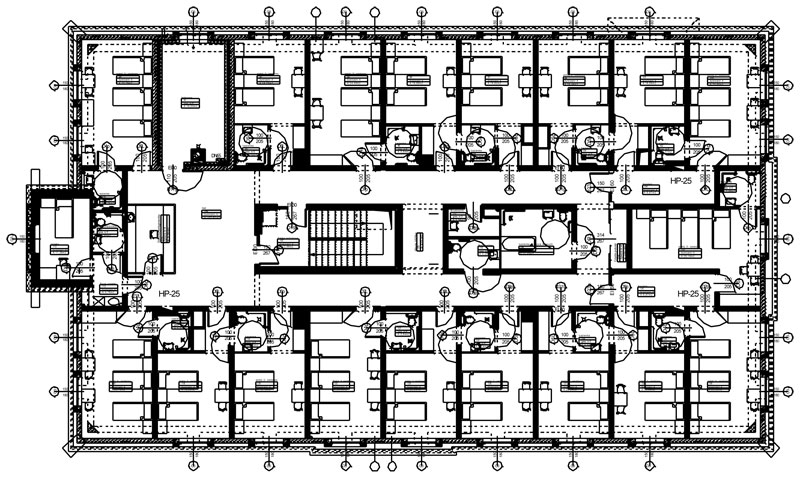
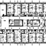
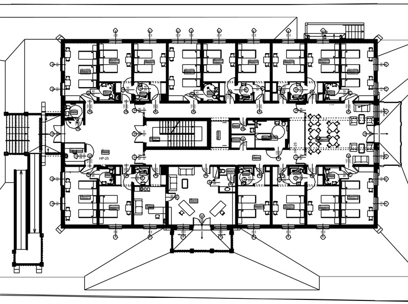
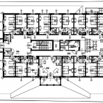
Parter i poddasze budynku w całości przeznaczono na rozwiązanie funkcji mieszkalnej dla pensjonariuszy Zakładu Pielęgnacyjno- Opiekuńczego. Ogółem budynek przewidziany jest dla obsługi 80 pensjonariuszy. I tak na parterze budynku zaprojektowano 6 pokoi mieszkalnych trzyosobowych oraz 11 pokoi mieszkalnych dwuosobowych dla łącznej liczby pensjonariuszy 40 osób oraz na poddaszu również zaprojektowano 6 pokoi mieszkalnych trzyosobowych oraz 11 pokoi mieszkalnych dwuosobowych dla łącznej liczby pensjonariuszy 40 osób . Pokoje trzyosobowe mają każdy własną łazienkę a pokoje dwuosobowe mają parami jedną łazienkę obsługującą w ten sposób 4 osoby . Wyjątek od tej reguły stanowi jeden z pokoi dwuosobowych znajdujący się w sąsiedztwie sali dziennego pobytu na parterze i pomieszczeń biurowych na poddaszu, który posiada własną łazienkę. Układ konstrukcyjny wyznaczony przez powtarzalność pokoi mieszkalnych zachowany jest co do zasady na wszystkich kondygnacjach budynku jedynie z nieznacznymi miejscowymi modyfikacjami. Dodatkowo na obu wymienionych kondygancjach rozwiązano obszerne łazienki do mycia osób leżących, ogólnodostępne w.c. przystosowane dla osób niepełnosprawnych, dyżurki pielęgniarskie , brudowniki ( pomieszczenia porządkowe) oraz magazynki czystej pościeli.
Na parterze rozwiązano obszerny hall główny oraz salę dziennego pobytu z dostępem na zadaszony podcieniowy taras w elewacji wschodniej budynku z którego sekwencją ramp można dostać się na teren działki.
Na poddaszu zaprojektowano natomiast dwa pomieszczenia biurowe z własną odrębna łazienka oraz zespół izolatki z własną łazienka i śluzą szatniową izolatki. Pomieszczenia biurowe maja wyjście na taras rozwiązany nad podcieniem w elewacji bocznej budynku .
W piwnicy budynku zaprojektowano pomieszczenia związane z obsługą pensjonariuszy w zakresie obsługi medycznej, rehabilitacji, wyżywienia, przygotowania posiłków,pralni, zaplecza szatniowo - sanitarnego dla pracowników oraz części magazynowej i technicznej z pomieszczeniem kotłowni włącznie. Część poświęcona obsłudze medycznej pensjonariuszy składa się z czterech gabinetów medycznych: gabinetu lekarskiego, gabinetu zabiegowego, gabinetu psychologa oraz gabinetu terapii zajęciowej oraz apteki, dodatkowo obok gabinetu zabiegowego zaprojektowano niewielkie pomieszczenie magazynowe na brudne igły. Sala rehabilitacyjna zaprojektowana została jako obszerne jednoprzestrzenne pomieszczenie na wyposażeniu którego projektuje się pięc rowerów stacjonarnych, klatka do ćwiczeń, drabinki , materace oraz ławeczki do ćwiczeń oraz rampa z poręczami do ćwiczenia chodzenia. Obok sali rehabilitacyjnej zaprojektowano magazyn podręczny sprzętu rehabilitacyjnego.
Projektowany zespół pomieszczeń związany z wyżywieniem pensjonariuszy składa się z kuchni oraz sali konsumpcyjnej – stołówki przewidzianej na 44 miejsca konsumpcyjne. Pozostali pensjonariusze w liczbie 36 osób niechodzących będą jedli w pokojach i nie będą korzystali ze stołówki. Ze stołówki będą natomiast korzystać pracownicy zakładu pielęgnacyjno - opiekuńczego jedząc w drugiej turze. Reasumując kuchnia została zaprojektowana do wydawania łącznie 110 posiłków dziennie. Przewiduje się zatrudnienie do pracy w kuchni 5 kobiet. Zespół szatniowo - sanitarny pracowników kuchni składa się z szatni na 5 szafek, przedsionka umywalni z dwoma umywalkami oraz natrysku i jednej muszli ustępowej. Zaprojektowano również pokój socjalny dla pracowników kuchni. Zespół kuchni składa się z kuchni właściwej, przygotowalni wstępnej warzyw, ekspedycji i zmywalni naczyń stołowych oraz pomieszczenia do dezynfekcji jaj, pomieszczenia porządkowego, pomieszczenia na odpadki oraz dwóch magazynów : magazyn podręczny kuchni oraz magazyn produktów suchych. W następujących pomieszczeniach zespołu kuchni zaprojektowano kratki ściekowe w podłodze: kuchnia, przygotowalnia wstępna warzyw, ekspedycja, zmywalnia naczyń stołowych, korytarz,pomieszczenie na odpadki, magazyn podręczny kuchni. Wyposażenie szczegółowe pomieszczeń w/g odrębnego projektu technologicznego.
Zaplecze szatniowo- sanitarne pracowników zakładu pielęgnacyjno- opiekuńczego przewidziane jest dla 20 kobiet i 6 mężczyzn. Nie projektuje się odrębnego pokoju socjalnego dla pracowników gdyż zakłada się, że będą korzystali w tym celu z pomieszczenia stołówki jedząc w drugiej turze po pensjonariuszach. Zespół szatniowo- sanitarny dla kobiet składa się z szatni na 20 szafek, przedsionka umywalni z dwoma umywalkami, dwóch natrysków i dwóch muszli ustępowych. Zespół szatniowo- sanitarny dla mężczyzn składa się z szatni na 6 szafek, przedsionka, umywalni z jedną umywalką, natrysku oraz pisuaru i jednej muszli ustępowej. W pomieszczeniu pisuaru projektuje się kratkę kanalizacyjną w podłodze.
Zespół pralni składa się z pralni właściwej do której dostarczana jest brudna pościel, która po upraniu przekazywana jest do pomieszczenia suszarni- prasowalni, które jest pomieszczeniem czystym. Dodatkowo obok pralni zaprojektowano magazyn czystej pościeli.
Projektuje się ponadto pomieszczenie hydroforni, serwerownię, brudownik, pomieszczenie
porządkowe oraz ogólnodostępny w. c. przystosowany dla osób niepełnosprawnych oraz magazyn mebli.Projektuje się kotłownię gazową.

 

DANE LICZBOWE DOTYCZĄCE PARAMETRÓW BUDYNKU

Powierzchnia całkowita PC 2371,80 m²
Powierzchnia użytkowa PU 1947,20 m2
Powierzchnia zabudowy PZ 795,72 m2
Powierzchnia tarasów na gruncie PT 106,79 m2
Kubatura brutto K 9308 m³

 

Uwazam,że jest to stosunkowo interesujacy budynek, ze względu na wyjątkową prostotę rozwiązania, w którym dominuje praktyczność, pakowność budynku i lapidarny schemat funkcjonalno-konstrukcyjny. To zręczne i tanie rozwiązanie projektowe.
Jeśli zainteresował Państwa ten projekt to zapraszam do współpracy.
Jednocześnie przypominam, że Pracownia Domy Polskie nie sprzedaje projektów gotowych,
Projektujemy wyłącznie na indywidualne zamówienie.
Pozdrawiam Państwa roboczo
mgr inż. arch. Beata Kazimierska-Korsak

Pliki do pobrania
file rzut piwnic (928KB) << pobierz >>
file rzut parteru (150KB) << pobierz >>
file rzut piętra (146KB) << pobierz >>