projektowanie architektury to zawód, sposób i styl życia
EX AMOR IN SAPIENTIA STABILIS
Pracownia
Architekt
Zespół
Projektujemy
Jesteśmy obecni
Patronaty / Partnerzy
Kontakt
Pracownia Autorska
DOMY POLSKIE ®
arch.
Beaty Kazimierskiej - Korsak
Mazowiecka Okręgowa Izba Architektów
MA - 0339
Uprawnienia Projektowe
Wa - 359/90
Rok założenia
1990
Członek Oddiału Warszawskiego
SARP
świetny warsztat projektowy, ogromne doświadczenie, wybitnie zdolni projektanci
Projektujemy wyłącznie na indywidualne zamówienie, nie sprzedajemy projektów gotowych, projektujemy dla Państwa.
Dorobek projektowy
wybierz rodzaj budynku
Projektowanie budynków mieszkalnych
⌊ Rezydencje
⌊ Domy jednorodzinne
⌊ Domy letniskowe
⌊ Budynki gospodarcze
⌊ Ogrodzenia
⌊ Osiedla mieszkaniowe
Projektowanie budynków użyteczności publicznej
⌊ Pensjonaty/Karczmy
⌊ Agroturystyka
⌊ Handel
⌊ Pawilony
⌊ Zakłady pielęgnacyjno-opiekuńcze
⌊ Zakłady pogrzebowe
⌊ Kaplice grobowe
⌊ Szalety publiczne
⌊ Inne
⌊ Usługowe
Projektowanie budynków przemysłowych
Przebudowy/Rozbudowy
Ratowanie DWORÓW
Nowe elewacje - lifting nieatrakcyjnych budynków
Wnętrza/meble
Realizacje
Powierzchnia użytkowa
od
m²
do
m²
wyszukaj
Projektowanie budynków mieszkalnych
rezydencje
domy jednorodzinne
domy letniskowe
budynki gospodarcze
Ogrodzenia
osiedla mieszkaniowe
Projektowanie budynków użyteczności publicznej
pensjonaty/karczmy
agroturystyka
handel
pawilony
zakłady pielęgnacyjno-opiekuńcze dla osób starszych
zakłady pogrzebowe
kaplice grobowe
szalety publiczne
inne
usługowe
Projektowanie budynków przemysłowych
Przebudowy/Rozbudowy
Ratowanie DWORÓW
Nowe elewacje - lifting nieatrakcyjnych budynków
Wnętrza/meble
Realizacje
Inne działania
prezentacje
wyklady
publikacje
archiwalne katalogi projektów
Ochrona i przetwarzanie danych osobowych_RODO
Domy jednorodzinne
Powrót do kategorii >>
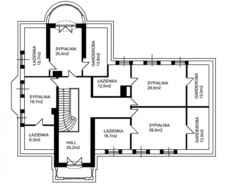
1.26 Chere Madame
Budynek mieszkalny, jednorodzinny, parterowy z poddaszem użytkowym, niepodpiwniczony.
Powierzchnia:
356.2m2 m2
Wymiary budynku:
dług. 20.03m x szer. 23.67m
Garaż:
2 msc.
Dodatkowe:
kominek
Typ budynku:
mieszkalny
Pliki do pobrania
rzut parteru
(485KB)
<< pobierz >>
rzut piętra
(623KB)
<< pobierz >>