projektowanie architektury to zawód, sposób i styl życia
EX AMOR IN SAPIENTIA STABILIS
emblem
Pracownia Autorska DOMY POLSKIE ®
arch. Beaty Kazimierskiej - Korsak
Mazowiecka Okręgowa Izba Architektów
MA - 0339
Uprawnienia Projektowe
Wa - 359/90
Rok założenia
1990
Członek Oddiału Warszawskiego
SARP
świetny warsztat projektowy, ogromne doświadczenie, wybitnie zdolni projektanci
Projektujemy wyłącznie na indywidualne zamówienie, nie sprzedajemy projektów gotowych, projektujemy dla Państwa.
Dorobek projektowy
image
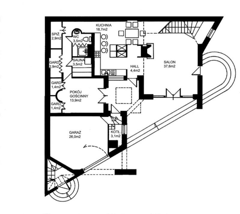
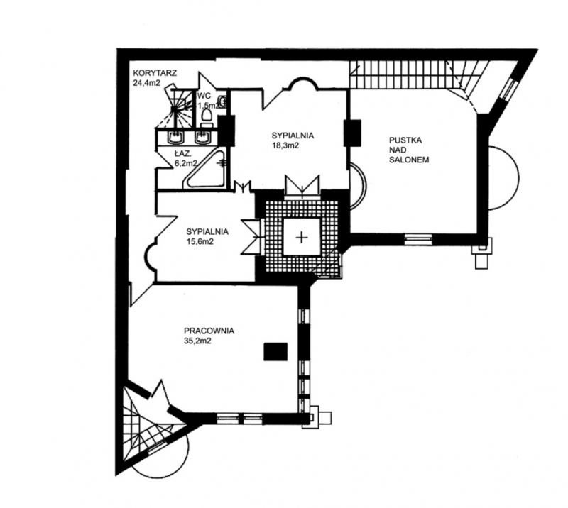
0.16 Z wirydażem

Budynek mieszkalny w zabudowie wg schematu, jednorodzinny, parterowy z poddaszem użytkowym, niepodpiwniczony.

Powierzchnia:
235.7m2 m2
Wymiary budynku:
dług. 17.05m x szer. 17.05m
Garaż:
1 msc.
Dodatkowe:
kominek
Typ budynku:
mieszkalny
Pliki do pobrania
file schemat zabudowy (251KB) << pobierz >>
file rzut parteru (492KB) << pobierz >>
file rzut poddasza (475KB) << pobierz >>